Двухкомнатная квартира 120,60 м2 по ул. Академика Королева 13 за 40045692 руб.

Двухкомнатная квартира по ул. Академика Королева, 13 в Москве
Цена 40 045 692 р. (332 054 р./м2)
Подать заявку на ипотеку
Район Останкинский
Адрес Академика Королева, 13
Этаж 8/8
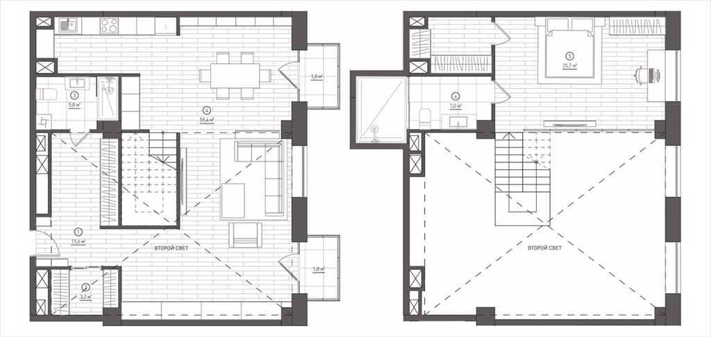
Площадь общая 120,6 м2, жилая 25,7 м2, кухни 59,4 м2
Кол-во комнат Двухкомнатная
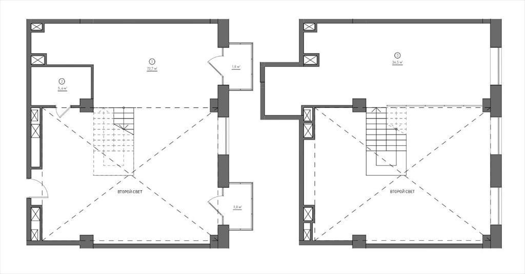
Двухуровневые апартаменты со свободной планировкой. Лот без отделки. Планировка 1 - предлагаемое планировочное решение: спальня на втором уровне, кухня-гостиная, гардеробная, 2 сан. узла. Планировка 2 - проектное планировочное решение. Апарт-комплекс "Королева 13" от застройщика Патек Групп. Объект введен в эксплуатацию. Особенности и преимущества проекта: - обустроенная терраса на крыше дома - фитнес зал с бассейном для резидентов - механизированный паркинг на 47 мест - конференц-зал, коворкинг и кинозал на 2 этаже - игровая зона для детей - шаговая доступность до всех достопримечательностей, инфраструктуры района Останкино и станции метро ВДНХ Мы - единственный официальный представитель застройщика. Всю актуальную информацию об объекте можно получить только у нас.
Описание дома
Этажность дома 8
Объявление № 21777019
Дата подачи:
6 апреля 2025 г. 0:51
Дата обновления:
5 апреля 2025 г. 22:52
Просмотров 12 Хотите продать быстрее?

Продавец
Отдел продаж
Показать номер телефона
Пожаловаться
Комментарии:
Добавить